Sealing strips are one of the most important door and window accessories. They are mainly used in frame sashes, frame glass and other parts. They play the role of sealing, waterproofing, sound insulation, shock absorption, and heat preservation. They are required to have good tensile strength, elasticity, temperature resistance and ageing resistance.
The sealing strips and profiles are combined to achieve the required sealing performance, which is affected by the main material, installation method, compression working range, compression force and cross-sectional shape of the strips.
Sealing strips can be divided into single material strips and composite material strips according to the material.
Single material strips mainly include EPDM sealing strips, silicone rubber (MVQ) sealing strips, thermoplastic vulcanized strips (TPV), and plasticized polyvinyl chloride strips (PVC). Composite material strips mainly include wire strips, surface spray strips, soft and hard composite strips, sponge composite strips, water-expandable strips, and coated strips.
The applicable conditions of various types of commonly used sealing strips are shown in the table below.

EPDM sealing strips have excellent basic physical properties (tensile strength, elongation at break, and compression permanent deformation), outstanding weather resistance, high and low temperature resistance, corrosion resistance, and excellent comprehensive performance. They are currently widely used in the field of doors and windows.
The recommended applicable temperature range of common sealing strips: EPDM material is -60℃~150℃, MVQ material is -60℃~300℃, TPV material is -40℃~150℃, and PVC material is -25℃~70℃.
Sealing strips can be divided into press-in type, penetration type, and adhesive type according to the installation method. They can be divided into frame-sash sealing strips, frame-glass sealing strips, and intermediate sealing strips according to the installation location of doors and windows.
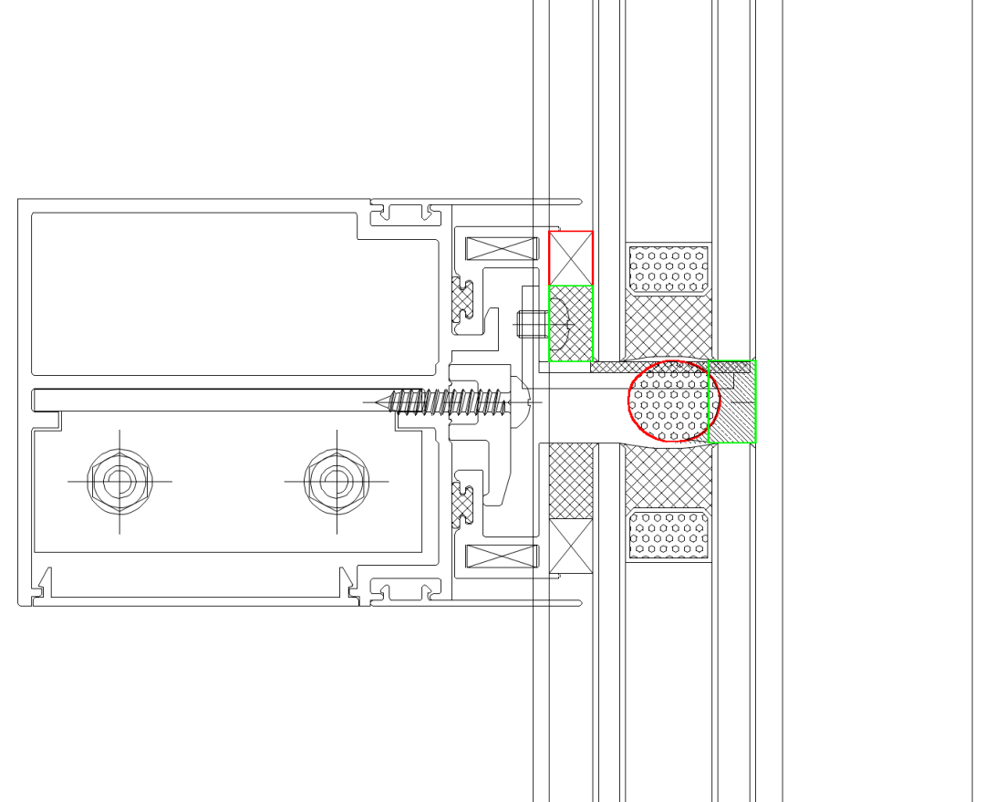
The frame-sash node of a broken bridge aluminum alloy door and window is shown in the figure below.

The cross-sectional shape of the frame-sash sealing strip should be selected as semi-enclosed or enclosed according to the needs. When the required design has a large working range or high sealing performance requirements, a semi-enclosed structure should be selected.
The installation method of the sealing strip between the frame and the sash should be a press-fit installation. The size design of the installation part of the strip should ensure that it does not fall off and fits tightly with the profile groove.
The sealing strip between the frame and the sash is also often called the main sealing strip or isobaric sealing strip. It plays the role of blocking air convection and heat radiation in the profile. It must meet both the sealing requirements and the opening and closing force requirements of doors and windows.
The installation space size requirements of the sealing strip between the frame and the glass are stipulated in JGJ 113-2015 “Technical Code for Application of Architectural Glass”, see the table below.

Among them, the dimensions of a, b, and c are shown in the figure below.
The common cross-sectional shapes of the sealing strip between the frame and the glass are shown in the figure below, and the press-fit installation method is often adopted.
Speaking of the sealing strip between the frame and the glass, there is another question worth discussing, that is, is it better to use sealing strips or sealants between the frame and the glass?
At present, most door and window system companies at home and abroad use strips as the first choice for frame glass sealing. This is because the rubber strip is an industrialized product, the installation quality is more controllable, and it is easy to replace.
Regarding the operation of applying sealant, although JGJ 113-2015 “Technical Code for Application of Building Glass” provides regulations for front and rear clearances, which is equivalent to approving this method, it is still not recommended to do so on site for the following reasons:
The quality of applying sealant on site is uncontrollable, especially the depth of applying sealant.
T/CECS 581-2019 “Technical Code for Application of Building Joint Sealant” provides the basic forms and structures of joint sealing, see the table below.

It can be seen that corresponding measures need to be taken to control the construction quality for the sealing of butt joints and intersection joints.
For example, the outer sealing joint of the common hidden frame glass curtain wall is the butt sealing joint, and the construction quality is controlled by the foam rod. The glass and the attached frame are bonded by double-sided stickers to control the width and thickness of the structural adhesive, as shown in the figure below.


The profiles of the installation parts of aluminum alloy windows and plastic window glass are all thin-walled profiles – glass beading, outdoor side profile arm, etc., and do not have the conditions to control the width and thickness of the sealant.
In addition, applying outdoor sealant after installing the glass is highly dangerous. Most of the door and window installations are completed indoors, while the outer sealant needs to be applied outdoors. It is dangerous when there is no outdoor operating platform such as scaffolding, hanging baskets, and boom trucks, especially when the glass panels are large.
Another common problem is that many European door and window system nodes do not have outdoor side frames and sash sealing strips, as shown in the figure below

This design is not to cut corners but for drainage considerations.
Doors and windows will have drainage holes on the horizontal frame material or horizontal centre stile material at the bottom of each partition (including fixed partitions and open partitions) so that water entering the doors and windows can be drained to the outside.

If the outdoor side frame and fan sealing strip are installed, it will form a closed space with the middle sealing strip, which is not conducive to isobaric drainage.
Speaking of isobaric drainage, you can do a small experiment: fill a mineral water bottle with water, poke some small holes in the bottle cap, and turn the bottle upside down, it is difficult for water to drain out from these small holes, then we also make some small holes at the bottom of the bottle, and the water can easily drain out through the small holes in the bottle cap.
This is also the basic principle of isobaric drainage of doors and windows.
Okay, let’s make a summary
Sealing strips are one of the most important door and window accessories, mainly used in frame fans, frame glass and other parts, playing the role of sealing, waterproofing, sound insulation, shock absorption, heat preservation, etc., and are required to have good tensile strength, elasticity, temperature resistance and aging resistance.
Sealing strips can be divided into single material strips and composite material strips according to the material. At present, the commonly used sealing strips in the field of doors and windows include EPDM sealing strips, silicone rubber (MVQ) sealing strips, thermoplastic vulcanized strips (TPV), plasticized polyvinyl chloride strips (PVC), etc.
Sealing strips can be divided into press-in type, penetration type, and adhesive type according to the installation method. According to the installation location of doors and windows, they can be divided into frame-sash sealing strips, frame-glass sealing strips, and middle sealing strips.
Is it better to use sealing strips or sealants between frames and glasses? In terms of construction quality controllability and on-site construction safety, the author recommends using sealing strips instead of on-site sealants.

Contact us
Mob/Whatsapp/We Chat:+86 13556890771(Direct Line)
Email: daniel.xu@aluminum-artist.com
Website: site_09b9a54f-8add-4be1-b7b5-d894637cb018
Address: Pingguo Industrial Zone, Baise City, Guangxi, China
Post time: Nov-09-2024


